Pearl Street Pump Station Schedule


1972 - The Clean Water Act was passed by the United States federal government and design of the South Portland wastewater treatment facility (WWTF) and major pump stations began.

Early blueprint of South Portland's wastewater treatment network

1978 - By 1978 construction of the WWTF and all major pump stations was completed.

1987 - In 1987 there were 28 combined sewer overflow (CSO) outfalls throughout the City. Those outfalls discharged approximately 500 million gallons of combined stormwater and sewage to the Casco Bay. Learn more about CSOs here.

1989-1990 - A series of small scale sewer separation projects were done. This included removing catch basins from the sewer system on McKinley Street, Upper & Lower Cleveland Circle, Main Street, New York Avenue, and Nelson Road ($47,000).

1997-1998 - The Red Bank 1 ($717,000) and 2 ($390,000) sewer separation projects were completed.

1994 - The original South Portland Combined Sewer Overflow Facilities Plan was developed and submitted to the Environmental Protection Agency and sewer separation projects on Hoyt Street and Kelsey Street were completed ($35,000).

Aerial image showing catch basins removed from the sewage system in Cash Corner

1999 - The Cash Corner sewer separation project removed 65 catch basins from the sewer system ($615,000)

2000 - The Pleasantdale Phase 1 sewer separation project ($151,000)

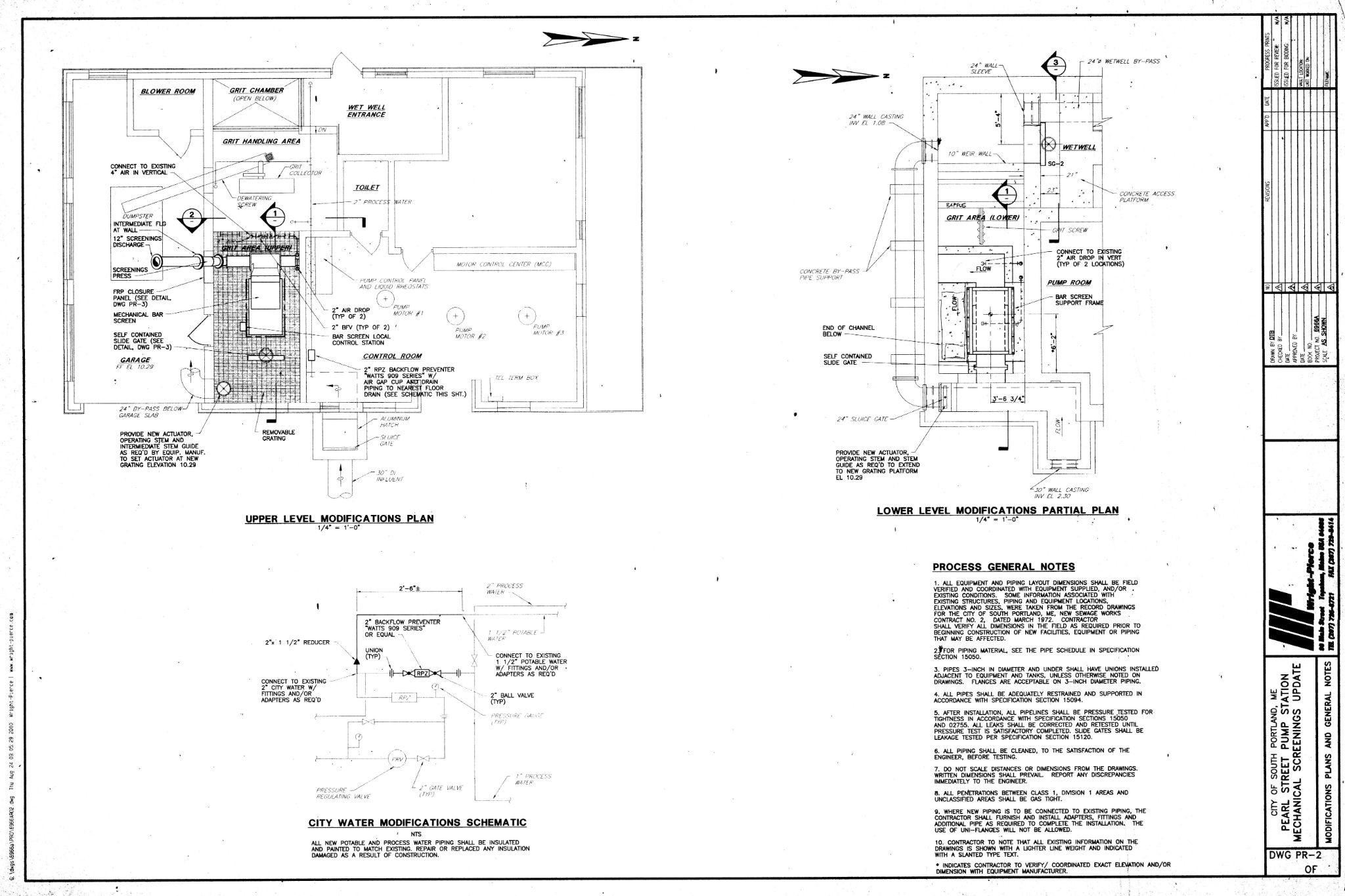
Engineering plans for Bar Screen Upgrades at the Pearl Street Pump Station

2001 - The hand screenings system for the Pearl Street Pump Station was upgraded to a mechanical screenings system ($222,000)

2004 - The original Pearl Street generator was replaced. The generator that was installed in 2004 has undergone several in-house repairs, including a fuel injector repair in 2017 and a heat exchanger replacement in 2020. The original generator was relocated to the Main Street Pump Station, is still in use, and is slated to be replaced in the near future ($60,000).

Aerial image showing the catch basins removed from the sewer system in Pleasantdale

2006 - The Pleasantdale Sewer Separation Project (second phase) removed 31 catch basins from the sewer system ($2,089,000).

2008 - By 2008 the City had reduced the number of CSO outfalls throughout the City to six by implementing sewer separation projects, increasing the capacity of pump stations and the treatment plant, and raising elevations of CSO weirs to contain more flow in the collection system. This work cost approximately $13,04 million and reduced CSO discharges to an average of 16 million gallons per year. 

Photo of the Long Creek Pump Station during construction

2009 - The Long Creek Pump Station was upgraded to increase the capacity of the pump station and allow the City to close the Long Creek CSO ($3,850,000).

2011 – CSO Facilities Plan Update accepted by Maine DEP (Submitted September 2008) - Wright-Pierce developed a CSO Masterplan for the City that was accepted by Maine DEP in 2011. At that point the remaining 6 CSOs were the most challenging CSOs to minimize/eliminate due to their location, volume, high peak flow rates, and existing infrastructure that was incapable of handling the flows. The recommendations outlined in the 2011 CSO plan included a phased approach of a combination of strategies including pump station and collection system capacity upgrades.

Thornton Heights Sewer Separation Phase 1 Phase 2 and Phase 3

2014-2016 - The Thornton Heights Sewer Separation project was done in three phases. The first was in 2014  and removed 86 catch basins from the sewer system ($2,190,000) shown in yellow. In 2015 the second phase  removed 75 catch basins from the sewer system ($3,575,000) shown in green. The final phase was done in 2016 and removed 56 catch basins (5,204,000) shown in pink. 

Aerial image showing catch basins removed from sewer during the Sandy Hill Rd Separation project

2016 - The Sandy Hill Road separation project removed 12 catch basins from the sewer system ($22,300). 

Aerial image showing the catch basins removed from the sewer system in Pleasantdale

2018 - The Pleasantdale Phase 2 Separation Project removed 31 storm drains from the sewer system ($4,139,400).

2022 - The South Portland Combined Sewer Overflow Facilities Plan Update was approved by the Maine Department of Environmental Protection in 2022. It was developed by Woodard & Curran and updated the existing SWMM model of the combined system, identified and evaluated alternatives to prevent overflows from the west side of the collection system, re-evaluated the control level on the east side of the collection system, and performed a financial capability analysis to determine the City's financial capacity to implement the CSO abatement recommendations. 

2023 - Engineering design work for the pump station has been underway since 2023. Land was acquired for the project in 2024.